Ricerca rapida
-
-
CERCA

Cesa
Nuova Costruzione con doppio terrazzo e Box Auto

Appartamento

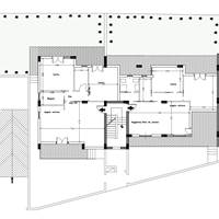
Nel comune di Cesa, in una zona tranquilla e ben collegata grazie alla vicinanza con la provinciale Caivano-Aversa, è in vendita un appartamento di nuova costruzione, in Mini-condominio di soli 5 Appartamenti . Le unità abitative offrono un ambiente intimo e riservato. Con una superficie di 85 mq, l'appartamento è composto da tre locali ben distribuiti, ideali per chi cerca spazi funzionali e moderni. Uno dei punti di forza sono i due terrazzi a livello di cui uno con ingresso indipendente , perfetto per momenti di relax all'aperto. Composizione: Ingresso in ampio Soggiorno Cucina, 2 Camere da letto e 2 bagni, ad ogni appartamento è abbinato un comodo Box Auto , garantendo comodità e sicurezza per il parcheggio.
Questa soluzione abitativa rappresenta un'opportunità interessante per chi desidera vivere in un contesto tranquillo senza rinunciare alla comodità dei collegamenti stradali.
Fissa Subito il tuo appuntamento! Per avere ulteriori informazioni o per fissare un appuntamento può chiamarci o mandarci un sms su WhatsApp il numeri 0818903123 -3509950050 oppure mandare una mail ad : amimmobiliare.net@gmail.com o passare a trovarci in Via Umberto I n° 41- Aversa (CE). Se sei interessato ad una valutazione GRATUITA e SENZA IMPEGNO del Tuo immobile, siamo a Tua completa disposizione. Clicca Mi piace sulla nostra Pagina Facebook Am Servizi Immobiliari Pagina Instragram amimmobiliareaversa

Caratteristiche

Codice
V000432
Prezzo
225.000,00 EUR
Mq
85
Classe
B
Locali
3
Camere
2
Bagni
2
Box
1
Mq Box
25
Stato Immobile
In Costruzione
Grado
Signorile
Posizione
Centro
Giardino
Privato
Arredi
Non Arredato
Tipo Soggiorno
Sala da Pranzo
Tipo Cucina
A Vista
Riscaldamento
Autonomo
Tipo Riscaldam.
Caldaia
Tipo Impianto
Radiatori
Fonte Energetica
Metano
Acqua Calda
Autonoma
Accessori
Cancello Elettrico, Passaggio Pedonale, Porta Blindata
Cookie preference